10:00〜18:00(土日祝はお休み)
03-6555-3374
マチラボシェア田園調布

Machi Lab Share Denenchofu
マチラボシェア田園調布
コンセプト
マチラボシェア田園調布は、戸建住宅をリノベーションしシェアハウスとして活用します。
閑静な高級住宅街が人気の田園調布エリアで、入居者へ交流の機会とゆったりとリラックスできる空間を提供し、落ち着いた雰囲気でコミュニティを楽しむ事ができる場づくりを目指します。
普段の生活の中でほどよい交流を楽しみながら、自分の時間も大事にしてリラックスした時間を過ごしたいという方を歓迎いたします。
利用用途
シェアハウス
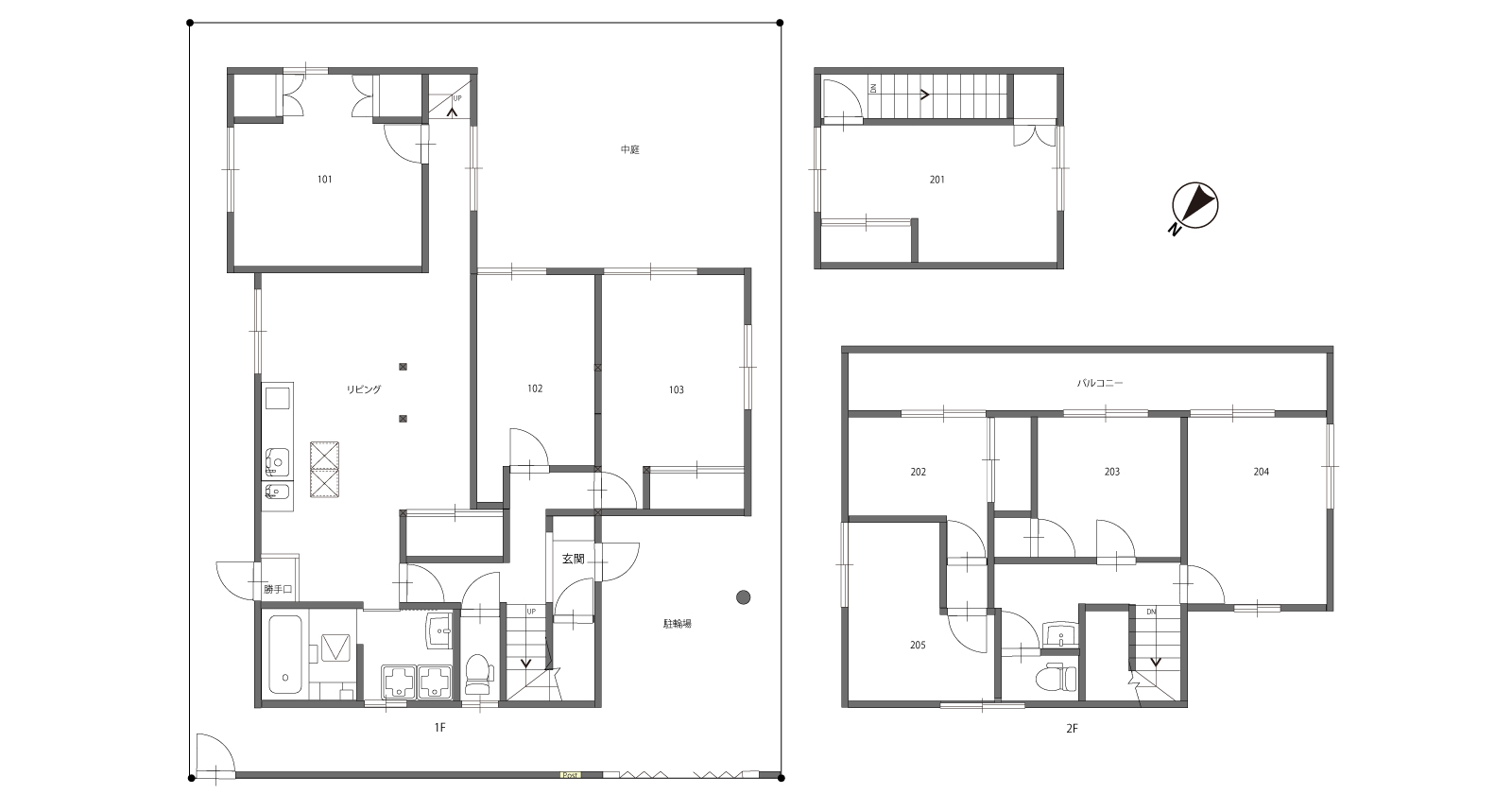
施設情報
| 構造 | 木造2階建 |
| 区画数 | 8区画(1階~2階シェアハウス8室) |
| 築年月 | 1976年 |
| 所在 | 東京都大田区田園調布1丁目 |
レイアウトイメージ

Before






途中経過




After






物件募集情報はこちら


マチラボシェア田園調布|多摩川駅徒歩8分,田園調布駅徒歩11分_シェアハウス | マチラボシェア
Click here for English page マチラボシェアデンエンチョウフ_シェアハウスマチラボシェア田園調布_シェアハウス| 大田区田園調布1丁目 フロアマップ | 内外観 | …
お問い合わせ
CONTCACT
まずはお気軽にお問い合わせください。
